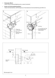
Swim-tec Eurojet 400 V Gegenschwimmanlage Vormontagesatz und Fertigmontagesatz komplett
Kompaktanlage in besonders leistungsstarker Ausführung mit kraftvollem Motor 3,5 kW-Motor für 65 m³/h. Die Anlage verfügt über eine Schwenkdüse mit regelbarer Schubkraft und konstantem Luftperlbad, Pneumatik- Ein-/Ausschalter, Pneumatikschaltung und eine Jet-Pumpe. PVC-Kugelhähne und PVC-Verrohrung sind ebenfalls im Lieferumfang enthalten.
- Swim-tec® Eurojet Fertigmontage 3,5 kW,
- Fertigmontage 400 V
- Leistungsaufnahme 3,5 kW
- Leistungsabgabe 2,8 kW
- Förderstrom der Pumpe 65 m³/h
- Einhänge-Gegenstromanlagen, ausgestattet mit bewährter Technik aus dem Hause Swim-Tec bietet diese Anlage eine schwenkbare Düse mit einem regulierbaren Luftperlbad.
- Inkl. Vormontagesatz
- Ohne Folienflansch
Machen Sie Wellen, wie Sie wollen oder lassen Sie sich mit dem prickelnden Luftperlbad massieren; der optional erhältliche Massageschlauch (Zusatzartikel nicht im Lieferumfang) ist dabei für die Verstärkung des Massageeffektes ideal.
Angaben zur Produktsicherheit
Herstellerinformationen:
UWE
Buchstraße 82
Schwäbisch Gmünd, Deutschland, 73510
jet@uwe.de
https://uwe.de/
Es gibt noch keine Bewertungen.