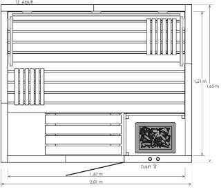
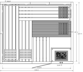
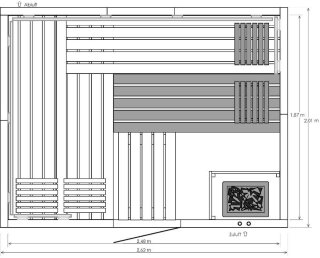
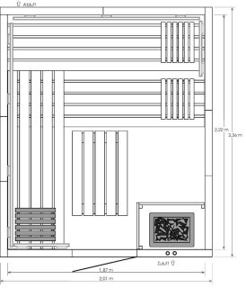
Elementsauna Typ Saunatop Exclusiv Maße nach Auswahl wählen Sie Ihren Ofen und Steuergerät.
Die Elementsaunen der Modellreihe Exclusiv sind hervorragend ausgestattet. Made in Germany. Keine Billigware sondern Handwerkliche Qualitätsarbeit, bis ins Detail.
Grundausstattung:
- 1 Ganzglastür ESG 6 mm parsol-bronce
- 1 Rückenlehne
- 1 Zwischenbankverkleidung
- 2 (3) Liegen (1,86 lang, 0,53 m breit)
- 2 Kopfstützen Standard
- 1 Fußrost Exklusiv Maße ca. 50 x 80 cm, Abachi 22 x 90 mm
- 1 Ofenschutzgitter
- 1 Spanleuchte klein mit Fassung
Ofen und Steuergerät finden Sie bei unserem Zubehör und sollte seperat bestellt werden.
Produktbeschreibung:
- Wandelemente Die Wandelemente sind allseitig mit Profilbrettern aus nordischer Fichte 12,5 mm nach DIN 68123 Teil 1 belegt. Die Qualität entspricht der A-Sortierung nach DIN 68126 Teil 3. Die Gesamtwandstärke beträgt ca. 70 mm. Als Dämmaterial dient eine 40 mm starke, halbsteife Mineralwolle.
- Dachelemente Die Dachelemente sind im Aufbau wie die Wandelemente, nur daß die Dachoberseiten (nicht sichtbar) mit Profilbrettern B-Sortierung belegt sind.
- Die Ganzglastür aus 6 mm parsol-bronce, Einscheibensicherheitsglas, diese Türe ist wahlweise rechts und links einzuschlagen. Gegen Aufpreis erhalten Sie auch eine andere Tür.
- Kabelleerrohre Für das Verlegen der Kabel für Steuergerät und Ofen ist das vordere Zuluft-Wandelement mit zwei Leerrohren ausgestattet.
- Die Abluftöffnung im Abluft-Wandelement ist mit einem Schieber regelbar.
- Liegeflächen und Sichtfront der Saunabänke sind in jedem Fall mit Ast- und splitterfreien Weichhölzern belegt. Der Bankrahmen ist aus nordischer Fichte. Eine ausreichende Bewegungsfreiheit in der Sauna und einen guten Liege-Komfort bieten die 53 cm breiten Bänke sowie eine spezielle Lattenbreite von ca. 90 mm.
- Sämtliche Saunaeinzelteile sind in stabilen Kartons verpackt, wobei keiner dieser Kartons das Gewicht von 100 kg überschreitet. An jedem Karton ist gut sichtbar die Zugehörigkeit zur jeweiligen Saunagröße und der Hinweis auf die Aufbauanleitung angebracht.
Wellness pur - ohne Stress und Kompromisse. Einfach nur noch mit allen Sinnen genießen, wohlfühlen und entspannen.
Qualität macht sich immer bezahlt, weil alle Anforderungen an Verarbeitung, Klima, Hygiene und natürlich die Lebensdauer bestens erfüllt werden.
Deshalb sollten Sie bei der Realisierung Ihrer individuellen Elementsauna nicht auf den Rat eines anerkannten Sauna- Experten verzichten. Fragen Sie uns, wir beraten Sie gerne ausführlich und völlig unverbindlich und erarbeiten mit Ihnen gemeinsam die für Sie beste Lösung.
Auf Wunsch mit Fenster.
Der Abstand zur Raumwand sollte mind. 3 cm betragen (bei Betrieb als finnische Trockensauna).
Angaben zur Produktsicherheit
Herstellerinformationen:
NEW
, ,
Es gibt noch keine Bewertungen.