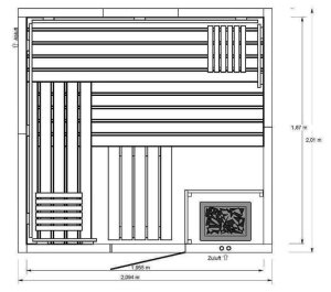
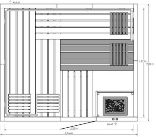
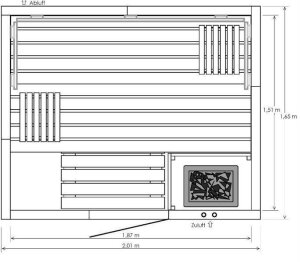
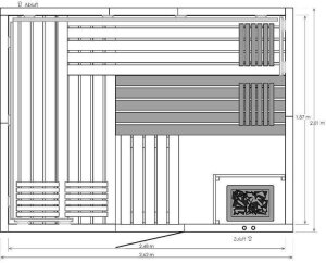
Elementsauna Typ Saunatop Classic Größe nach Auswahl
Die Elementsaunen der Modellreihe Classic sind hervorragend ausgestattet. Made in Germany
Grundausstattung:
- 1 Tür aus nordischer Fichte mit Glasfenster Profilholztür Standard ISO-verglast bronce
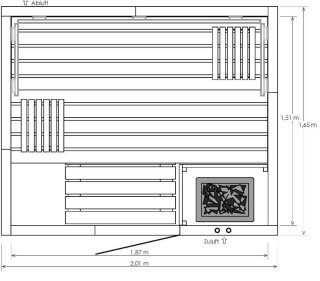
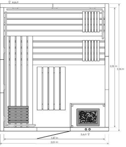
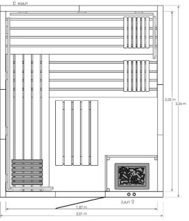
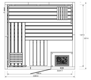
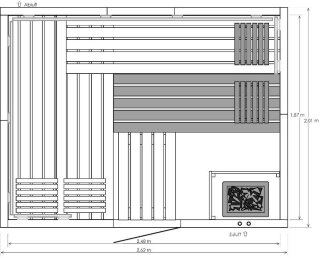
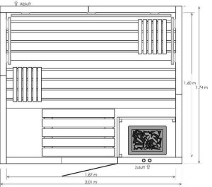
- 2 (3 je nach Saunagrösse) Liegen (0,53 m breit) Lattenbreite ca. 90 mm!
- 2 Kopfstützen Exklusiv
- 1 Fußrost Standard (50 x 80 cm)
- 1 Ofenschutzgitter
- 1 Spanleuchte mit Fassung
- 12,5 mm Softlineprofilbretter A-Sortierung
- Dachoberseite B-Sortierung
- Dämmung Mineralwolle
- Fußrost Exklusiv (53 x 80 cm, Abachi 22 x 90 mm)
Ofen und Steuergerät finden Sie bei unserem Zubehör und sollte seperat bestellt werden.
Qualitätsarbeit, bis ins Detail!
Produktbeschreibung:
-
Wandelemente Die Wandelemente sind allseitig mit Profilbrettern aus nordischer Fichte 12,5 mm nach DIN 68123 Teil 1 belegt. Die Qualität entspricht der A-Sortierung nach DIN 68126 Teil 3. Die Gesamtwandstärke beträgt ca. 70 mm. Als Dämmaterial dient eine 40 mm starke, halbsteife Mineralwolle.
-
Dachelemente Die Dachelemente sind im Aufbau wie die Wandelemente, nur daß die Dachoberseiten (nicht sichtbar) mit Profilbrettern B-Sortierung belegt sind.
-
Die Profilholztür Standard, mit einem Lichtausschnitt von 25 x 118 cm einfach verglast in parsol-bronce, hat ein lichtes Durchgangsmaß von 53 x 175 cm. Das Türblatt ist voll wärmegedämmt mit 40 mm Mineralwolle und ist wahlweise rechts und links angeschlagen. Gegen Aufpreis erhalten Sie auch eine Ganzglastür.
- Kabelleerrohre Für das Verlegen der Kabel für Steuergerät und Ofen ist das vordere Zuluft-Wandelement mit zwei Leerrohren ausgestattet.
-
Die Abluftöffnung im Abluft-Wandelement ist mit einem Schieber regelbar.
-
Liegeflächen und Sichtfront der Saunabänke sind in jedem Fall mit Ast- und splitterfreien Weichhölzern belegt. Der Bankrahmen ist aus nordischer Fichte. Eine ausreichende Bewegungsfreiheit in der Sauna und einen guten Liege-Komfort bieten die 53 cm breiten Bänke sowie eine spezielle Lattenbreite von ca. 90 mm.
-
Sämtliche Saunaeinzelteile sind in stabilen Kartons verpackt, wobei keiner dieser Kartons das Gewicht von 100 kg überschreitet. An jedem Karton ist gut sichtbar die Zugehörigkeit zur jeweiligen Saunagröße und der Hinweis auf die Aufbauanleitung angebracht.
Wellness pur ohne Stress und Kompromisse. Einfach nur noch mit allen Sinnen genießen, wohlfühlen und entspannen.
Qualität macht sich immer bezahlt, weil alle Anforderungen an Verarbeitung, Klima, Hygiene und natürlich die Lebensdauer bestens erfüllt werden.
Deshalb sollten Sie bei der Realisierung Ihrer individuellen Elementsauna nicht auf den Rat eines anerkannten Sauna- Experten verzichten. Fragen Sie uns, wir beraten Sie gerne ausführlich und völlig unverbindlich und erarbeiten mit Ihnen gemeinsam die für Sie beste Lösung.
Auf Wunsch mit Fenster.
Der Abstand zur Raumwand sollte mind. 3 cm betragen (bei Betrieb als finnische Trockensauna).
Bilder zeigen nicht den Lieferumfang, da telweise Fotos mit Sonderausstattung.
Angaben zur Produktsicherheit
Herstellerinformationen:
NEW
, ,
Es gibt noch keine Bewertungen.