Elektrischer Saunaofen HUUM CLIFF 10,5 kW
Highlights
- Schlanke Bauform mit minimalen Sicherheitsabständen – ideal für kleinere Saunen
- Bis zu 75 kg Saunasteine für milden, lang anhaltenden Dampf
- Interner Lufttunnel beschleunigt die Erwärmung um ca. 25 % und schont Heizelemente
- App- und Panel-Steuerung mit HUUM UKU (Local / WiFi / GSM)
- Red Dot Award (Produktdesign) 2021
Design & Nachhaltigkeit
Die markante Naturstein-Oberfläche des CLIFF spiegelt die Ästhetik nordischer Felsklippen wider.
Das Gehäuse entsteht aus Ausschnitten von Edelstahlblechen, die bei der Fertigung der HUUM STEEL-Öfen anfallen – so werden Materialreste sinnvoll genutzt und Abfall reduziert.
Die schlanke Silhouette und die steinbetonende Konstruktion sorgen für sanften, gleichmäßigen Dampf – ideal für entspannte, längere Saunagänge.
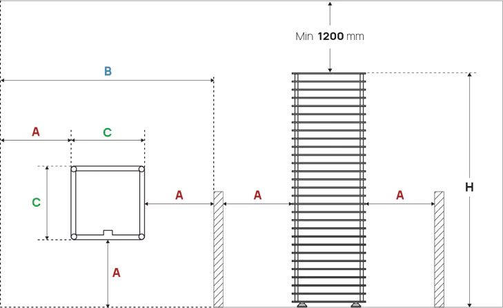
Einbau & Sicherheit
Sicherheitsabstände
| A |
240 mm |
| B |
750 mm |
| C |
270 mm |
| H |
975 mm |
Teilintegration
Optional ist eine Teilintegration in die Saunabank möglich;
dabei muss der Ofen mindestens 550 mm über die Bankoberfläche hinausragen.
Für saubere Schnittkanten empfiehlt sich der passende Einbauflansch (CLIFF/STEEL).
Interner Lufttunnel
Der integrierte Lufttunnel optimiert die Luftführung im Ofen, verkürzt die Aufheizzeit um ~25 % und erhöht die Lebensdauer der Heizelemente.
Technische Daten – CLIFF 10,5 kW
| Nennleistung |
10,5 kW |
| Saunavolumen |
10 – 16 m³ |
| Steinkapazität |
75 kg (Ø 3–5 cm empfohlen) |
| Gewicht (leer) |
17 kg |
| Höhe |
975 mm |
| Breite |
270 mm |
| Tiefe |
270 mm |
| Sicherung |
16 A |
| Versorgungsspannung |
3/N~400 V (Drehstrom) |
| Leiterquerschnitt |
5 × 2,5 mm² |
| Hinweis Elektroanschluss |
Der 230 V 1N-Anschluss entspricht einem Drehstromanschluss; Unterteilung der Heizkreise vor dem Leistungsschalter. |
Lieferumfang
- Elektrischer Saunaofen HUUM CLIFF 10,5 kW
- Verstellbare Standbeine
Benötigtes Zubehör
- HUUM UKU-Saunasteuerung (Local / WiFi / GSM)
- Saunasteine: 75 kg, Durchmesser 3–5 cm
- Hitzebeständiges Stromkabel gemäß technischen Anforderungen
Designoptionen
Sicherheitsgeländer
Das Sicherheitsgeländer markiert den Schutzbereich und reduziert das Risiko unbeabsichtigten Kontakts mit dem heißen Ofen.
Teilintegration in die Bank
Der CLIFF kann optional in die Saunabank integriert werden; der Ofen muss dabei mindestens 550 mm über die Bankoberfläche hinausragen.
Für saubere Schnittkanten den Einbauflansch CLIFF/STEEL verwenden.
Angaben zur Produktsicherheit
Herstellerinformationen:
HUUM OÜ
Vahi tee 9
Tartu vald, Estland, 60534
info@huum.eu
https://huum.de/kontakte/
Es gibt noch keine Bewertungen.